















2.200 € / m2
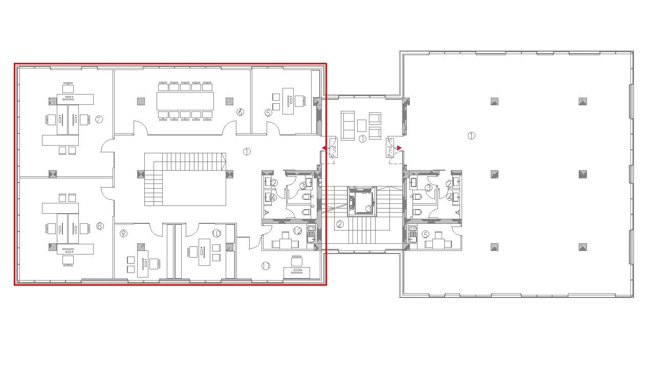
447,37 m2
PRIZEMLJE / 1. KAT
KLJUČ U RUKE
| # | NAZIV PROSTORIJE | VRSTA PODA | KOEF. | POVRŠINA (m2) | ||
|---|---|---|---|---|---|---|
| bez koef. | s koef. | |||||
| DIO U PRIZEMLJU | ||||||
| 1 | izložbeni prostor | epoksid | 1,00 | 158,34 | 158,34 | |
| 2 | stubište s galerijom | epoksid | 1,00 | 19,08 | 19,08 | |
| 3 | tehnika | epoksid | 1,00 | 3,42 | 3,42 | |
| NETO POVRŠINA DIJELA U PRIZEMLJU | 180,84 | 180,84 | ||||
| DIO NA PRVOM KATU | ||||||
| 1 | hodnik sa stubištem i galerijom | epoksid | 1,00 | 59,29 | 59,29 | |
| 2 | predprostor sanitarija | keramika | 1,00 | 1,35 | 1,35 | |
| 3 | WC ženski | keramika | 1,00 | 3,32 | 3,32 | |
| 4 | WC muški | keramika | 1,00 | 4,61 | 4,61 | |
| 5 | ured br. 1 | epoksid | 1,00 | 19,63 | 19,63 | |
| 6 | prostorija za sastanke | epoksid | 1,00 | 40,27 | 40,27 | |
| 7 | ured br. 2 | epoksid | 1,00 | 45,91 | 45,91 | |
| 8 | ured br. 3 | epoksid | 1,00 | 43,67 | 43,67 | |
| 9 | ured br. 4 | epoksid | 1,00 | 14,77 | 14,77 | |
| 10 | ured br. 5 | epoksid | 1,00 | 15,06 | 15,06 | |
| 11 | ured br. 6 | epoksid | 1,00 | 12,48 | 12,48 | |
| 12 | čajna kuhinja | epoksid | 1,00 | 6,17 | 6,17 | |
| NETO POVRŠINA DIJELA NA PRVOM KATU | 266,53 | 266,53 | ||||
| NETO POVRŠINA POSLOVNOG PROSTORA | 447,37 | 447,37 | ||||
2.200 € / m2
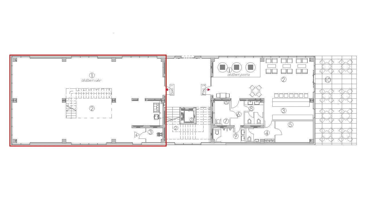
138,11 m2
PRIZEMLJE
KLJUČ U RUKE
| # | NAZIV PROSTORIJE | VRSTA PODA | KOEF. | POVRŠINA (m2) | |
|---|---|---|---|---|---|
| bez koef. | s koef. | ||||
| 1 | izložbeni prostor | epoksid | 1,00 | 13,25 | 13,25 |
| 2 | uslužni dio kafića | epoksid | 1,00 | 48,62 | 48,62 |
| 3 | konobarski dio kafića | epoksid | 1,00 | 13,35 | 13,35 |
| 4 | garderoba i sanitarije za zaposlene | keramika | 1,00 | 6,77 | 6,77 |
| 5 | spremište kafića | keramika | 1,00 | 11,67 | 11,67 |
| 6 | predprostor sanitarija | keramika | 1,00 | 4,95 | 4,95 |
| 7 | WC za invalide | keramika | 1,00 | 5,22 | 5,22 |
| 8 | WC ženski | keramika | 1,00 | 6,22 | 6,22 |
| 9 | WC muški | keramika | 1,00 | 6,46 | 6,46 |
| 10 | djelomično natkrivena terasa | keramika | 0,50 / 0,25 | 32,40 / 21,60 | 16,20 / 5,40 |
| NETO POVRŠINA POSLOVNOG PROSTORA | 170,51 | 138,11 | |||
2.200 € / m2
241,84 m2
1. KAT
KLJUČ U RUKE
| # | NAZIV PROSTORIJE | VRSTA PODA | KOEF. | POVRŠINA (m2) | |
|---|---|---|---|---|---|
| bez koef. | s koef. | ||||
| 1 | uredski dio | epoksid | 1,00 | 226,39 | 226,39 |
| 2 | predprostor sanitarija | keramika | 1,00 | 1,35 | 1,35 |
| 3 | WC ženski | keramika | 1,00 | 3,32 | 3,32 |
| 4 | WC muški | keramika | 1,00 | 4,61 | 4,61 |
| 5 | čajna kuhinja | epoksid | 1,00 | 6,17 | 6,17 |
| NETO POVRŠINA POSLOVNOG PROSTORA | 241,84 | 241,84 | |||
2.200 € / m2
281,77 m2
2. KAT
KLJUČ U RUKE
| # | NAZIV PROSTORIJE | VRSTA PODA | KOEF. | POVRŠINA (m2) | |
|---|---|---|---|---|---|
| bez koef. | s koef. | ||||
| 1 | uredski dio | epoksid | 1,00 | 266,32 | 266,32 |
| 2 | predprostor sanitarija | keramika | 1,00 | 1,35 | 1,35 |
| 3 | WC ženski | keramika | 1,00 | 3,32 | 3,32 |
| 4 | WC muški | keramika | 1,00 | 4,61 | 4,61 |
| 5 | čajna kuhinja | epoksid | 1,00 | 6,17 | 6,17 |
| NETO POVRŠINA POSLOVNOG PROSTORA | 281,77 | 281,77 | |||
2.200 € / m2
241,32 m2
2. KAT
KLJUČ U RUKE
| # | NAZIV PROSTORIJE | VRSTA PODA | KOEF. | POVRŠINA (m2) | |
|---|---|---|---|---|---|
| bez koef. | s koef. | ||||
| 1 | uredski dio | epoksid | 1,00 | 225,87 | 225,87 |
| 2 | predprostor sanitarija | keramika | 1,00 | 1,35 | 1,35 |
| 3 | WC ženski | keramika | 1,00 | 3,32 | 3,32 |
| 4 | WC muški | keramika | 1,00 | 4,61 | 4,61 |
| 5 | čajna kuhinja | epoksid | 1,00 | 6,17 | 6,17 |
| NETO POVRŠINA POSLOVNOG PROSTORA | 241,32 | 241,32 | |||
2.200 € / m2
198,59 m2
3. KAT
KLJUČ U RUKE
| # | NAZIV PROSTORIJE | VRSTA PODA | KOEF. | POVRŠINA (m2) | |
|---|---|---|---|---|---|
| bez koef. | s koef. | ||||
| 1 | uredski dio | epoksid | 1,00 | 139,39 | 139,39 |
| 2 | predprostor sanitarija | keramika | 1,00 | 1,35 | 1,35 |
| 3 | WC ženski | keramika | 1,00 | 3,32 | 3,32 |
| 4 | WC muški | keramika | 1,00 | 4,61 | 4,61 |
| 5 | čajna kuhinja | epoksid | 1,00 | 6,28 | 6,28 |
| 6 | djelomično natkrivena terasa | keramika | 0,50 0,25 |
72,18 30,21 |
36,09 7,55 |
| NETO POVRŠINA POSLOVNOG PROSTORA | 257,34 | 198,59 | |||
2.200 € / m2
161,78 m2
3. KAT
KLJUČ U RUKE
| # | NAZIV PROSTORIJE | VRSTA PODA | KOEF. | POVRŠINA (m2) | |
|---|---|---|---|---|---|
| bez koef. | s koef. | ||||
| 1 | uredski dio | epoksid | 1,00 | 126,64 | 126,64 |
| 2 | predprostor sanitarija | keramika | 1,00 | 1,35 | 1,35 |
| 3 | WC ženski | keramika | 1,00 | 3,32 | 3,32 |
| 4 | WC muški | keramika | 1,00 | 4,61 | 4,61 |
| 5 | čajna kuhinja | epoksid | 1,00 | 6,28 | 6,28 |
| 6 | djelomično natkrivena terasa | keramika | 0,50 0,25 |
8,35 61,50 |
4,18 15,40 |
| NETO POVRŠINA POSLOVNOG PROSTORA | 212,15 | 161,78 | |||
2.200 € / m2
216,02 m2
4. KAT
KLJUČ U RUKE
| # | NAZIV PROSTORIJE | VRSTA PODA | KOEF. | POVRŠINA (m2) | |
|---|---|---|---|---|---|
| bez koef. | s koef. | ||||
| 1 | uredski dio | epoksid | 1,00 | 200,33 | 200,33 |
| 2 | predprostor sanitarija | keramika | 1,00 | 1,35 | 1,35 |
| 3 | WC ženski | keramika | 1,00 | 3,32 | 3,32 |
| 4 | WC muški | keramika | 1,00 | 4,62 | 4,62 |
| 5 | čajna kuhinja | epoksid | 1,00 | 3,88 | 3,88 |
| 6 | nenatkrivena terasa | keramika | 0,25 | 10,08 | 2,52 |
| NETO POVRŠINA POSLOVNOG PROSTORA | 223,58 | 216,02 | |||
2.200 € / m2
115,26 m2
4. KAT
KLJUČ U RUKE
| # | NAZIV PROSTORIJE | VRSTA PODA | KOEF. | POVRŠINA (m2) | |
|---|---|---|---|---|---|
| bez koef. | s koef. | ||||
| 1 | uredski dio | epoksid | 1,00 | 85,57 | 85,57 |
| 2 | WC | keramika | 1,00 | 1,35 | 1,35 |
| 3 | čajna kuhinja | epoksid | 1,00 | 3,88 | 3,88 |
| 4 | djelomično natkrivena terasa | keramika | 0,50/ 0,25 |
31,98/ 24,14 |
15,99/ 6,04 |
| NETO POVRŠINA POSLOVNOG PROSTORA | 149,35 | 115,26 | |||
PREMA DOGOVORU
243,95 m2
5. KAT
KLJUČ U RUKE
| # | NAZIV PROSTORIJE | VRSTA PODA | KOEF. | POVRŠINA (m2) | |
|---|---|---|---|---|---|
| bez koef. | s koef. | ||||
| 1 | uredski dio | epoksid | 1,00 | 199,13 | 199,13 |
| 2 | predprostor sanitarija | keramika | 1,00 | 1,65 | 1,65 |
| 3 | WC ženski | keramika | 1,00 | 3,68 | 3,68 |
| 4 | WC muški | keramika | 1,00 | 4,62 | 4,62 |
| 5 | čajna kuhinja | epoksid | 1,00 | 4,26 | 4,26 |
| 6 | nenatkrivena terasa | keramika | 0,25 | 122,43 | 30,61 |
| NETO POVRŠINA POSLOVNOG PROSTORA | 335,77 | 243,95 | |||
Radi se o ekskluzivnoj novogradnji poslovne zgrade koja će biti smještena na jednoj od najatraktivnijih lokacija – samom ulazu u grad Varaždin. Ovaj projekt donosi moderan i reprezentativan poslovni prostor koji će zadovoljiti najviše standarde funkcionalnosti, udobnosti i energetske učinkovitosti.
Ukupna bruto površina zgrade iznosit će 2.800 m², dok će neto površina biti 2.290 m². Prostor je koncipiran tako da bude potpuno funkcionalan i autonoman, s mogućnošću korištenja 24 sata dnevno. Posebna prednost projekta je fleksibilnost – kupci će moći birati veličinu prostora prema svojim potrebama, kao i prilagoditi raspored i izvedbu interijera u skladu s budućom djelatnošću.
Zgrada će imati jedan ulaz i neovisnu vertikalnu komunikaciju, čime se omogućuje veća privatnost i praktičnost za različite korisnike. U cijelosti će biti opremljena optčkom infrastrukturom, osiguravajući brzu i pouzdanu internetsku povezanost, što je ključno za suvremeno poslovanje.
Projekt se ističe i svojom održivošću – predviđena je gradnja prema najnovijim standardima energetske učinkovitosti. Ugradit će se moderni energetski učinkovit sustav grijanja i hlađenja, što će rezultirati zgradom niskog energetskog potencijala, s optimiziranim troškovima potrošnje energije i visokim stupnjem ekološke prihvatljivosti.
Planirani završetak radova je kraj 2026. godine, nakon čega će Varaždin dobiti novu, modernu poslovnu adresu koja će postati sinonim za kvalitetu i prestiž.